Best Buy Third Party Financing . learn about deferred financing with best buy, including how it works, payment requirements, account information, helpful. Interested in the my best buy® credit card? Enjoy the products you want today and pay for them over time with flexible financing options,. They can be your current. Buy now, pay later with fairstone™.¹. Apply today and get 10% back* in rewards on your first.
from finturf.com
Interested in the my best buy® credit card? learn about deferred financing with best buy, including how it works, payment requirements, account information, helpful. Apply today and get 10% back* in rewards on your first. They can be your current. Enjoy the products you want today and pay for them over time with flexible financing options,. Buy now, pay later with fairstone™.¹.
What Is Third Party Financing 3rd Party Financing Guide
Best Buy Third Party Financing They can be your current. Enjoy the products you want today and pay for them over time with flexible financing options,. learn about deferred financing with best buy, including how it works, payment requirements, account information, helpful. Apply today and get 10% back* in rewards on your first. They can be your current. Interested in the my best buy® credit card? Buy now, pay later with fairstone™.¹.
From buycarblog.com
Dealer Financing Vs ThirdParty Financing (What You Need To Know Best Buy Third Party Financing Apply today and get 10% back* in rewards on your first. Buy now, pay later with fairstone™.¹. Interested in the my best buy® credit card? learn about deferred financing with best buy, including how it works, payment requirements, account information, helpful. They can be your current. Enjoy the products you want today and pay for them over time with. Best Buy Third Party Financing.
From www.tffn.net
Buying a Car with Third Party Financing Tips and Strategies The Best Buy Third Party Financing Interested in the my best buy® credit card? They can be your current. Apply today and get 10% back* in rewards on your first. learn about deferred financing with best buy, including how it works, payment requirements, account information, helpful. Buy now, pay later with fairstone™.¹. Enjoy the products you want today and pay for them over time with. Best Buy Third Party Financing.
From www.typecalendar.com
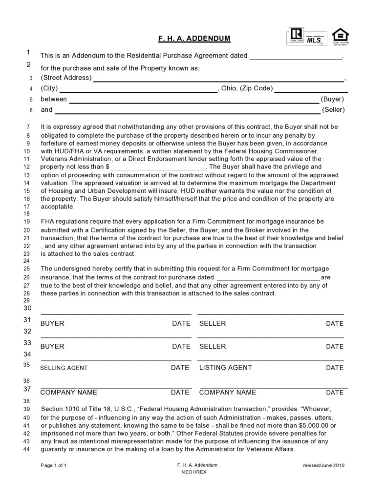
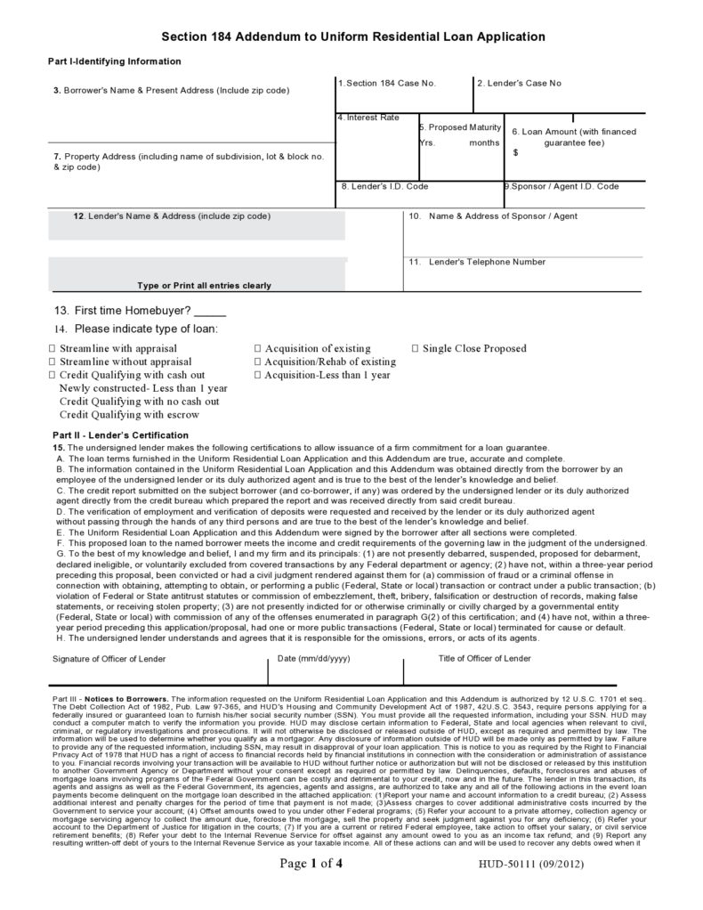
Free Printable ThirdParty Financing Addendum Templates [PDF] Examples Best Buy Third Party Financing learn about deferred financing with best buy, including how it works, payment requirements, account information, helpful. Apply today and get 10% back* in rewards on your first. Buy now, pay later with fairstone™.¹. Enjoy the products you want today and pay for them over time with flexible financing options,. Interested in the my best buy® credit card? They can. Best Buy Third Party Financing.
From www.typecalendar.com
Free Printable ThirdParty Financing Addendum Templates [PDF] Examples Best Buy Third Party Financing They can be your current. Apply today and get 10% back* in rewards on your first. Enjoy the products you want today and pay for them over time with flexible financing options,. Interested in the my best buy® credit card? learn about deferred financing with best buy, including how it works, payment requirements, account information, helpful. Buy now, pay. Best Buy Third Party Financing.
From templatelab.com
26 Third Party Financing Addendum Examples ᐅ TemplateLab Best Buy Third Party Financing Interested in the my best buy® credit card? Enjoy the products you want today and pay for them over time with flexible financing options,. Buy now, pay later with fairstone™.¹. learn about deferred financing with best buy, including how it works, payment requirements, account information, helpful. They can be your current. Apply today and get 10% back* in rewards. Best Buy Third Party Financing.
From www.consumerismcommentary.com
Best Buy Financing Offers How Does It Work and Is It Worth It? Best Buy Third Party Financing Interested in the my best buy® credit card? learn about deferred financing with best buy, including how it works, payment requirements, account information, helpful. Buy now, pay later with fairstone™.¹. They can be your current. Apply today and get 10% back* in rewards on your first. Enjoy the products you want today and pay for them over time with. Best Buy Third Party Financing.
From finturf.com
What Is Third Party Financing 3rd Party Financing Guide Best Buy Third Party Financing Enjoy the products you want today and pay for them over time with flexible financing options,. Buy now, pay later with fairstone™.¹. Apply today and get 10% back* in rewards on your first. learn about deferred financing with best buy, including how it works, payment requirements, account information, helpful. They can be your current. Interested in the my best. Best Buy Third Party Financing.
From www.typecalendar.com
Free Printable ThirdParty Financing Addendum Templates [PDF] Examples Best Buy Third Party Financing They can be your current. Enjoy the products you want today and pay for them over time with flexible financing options,. Buy now, pay later with fairstone™.¹. Apply today and get 10% back* in rewards on your first. learn about deferred financing with best buy, including how it works, payment requirements, account information, helpful. Interested in the my best. Best Buy Third Party Financing.
From templatelab.com
26 Third Party Financing Addendum Examples ᐅ TemplateLab Best Buy Third Party Financing learn about deferred financing with best buy, including how it works, payment requirements, account information, helpful. Apply today and get 10% back* in rewards on your first. Buy now, pay later with fairstone™.¹. Interested in the my best buy® credit card? Enjoy the products you want today and pay for them over time with flexible financing options,. They can. Best Buy Third Party Financing.
From www.texasroadrunnerrealty.com
Third Party Financing Addendum Explained Texas Roadrunner Realty Best Buy Third Party Financing They can be your current. Enjoy the products you want today and pay for them over time with flexible financing options,. Buy now, pay later with fairstone™.¹. learn about deferred financing with best buy, including how it works, payment requirements, account information, helpful. Apply today and get 10% back* in rewards on your first. Interested in the my best. Best Buy Third Party Financing.
From www.ucfs.net
The Beginners Guide to ThirdParty Financing For Your Business UCFS Best Buy Third Party Financing Buy now, pay later with fairstone™.¹. They can be your current. Interested in the my best buy® credit card? Apply today and get 10% back* in rewards on your first. learn about deferred financing with best buy, including how it works, payment requirements, account information, helpful. Enjoy the products you want today and pay for them over time with. Best Buy Third Party Financing.
From templatelab.com
26 Third Party Financing Addendum Examples ᐅ TemplateLab Best Buy Third Party Financing Enjoy the products you want today and pay for them over time with flexible financing options,. learn about deferred financing with best buy, including how it works, payment requirements, account information, helpful. Buy now, pay later with fairstone™.¹. They can be your current. Interested in the my best buy® credit card? Apply today and get 10% back* in rewards. Best Buy Third Party Financing.
From www.typecalendar.com
Free Printable ThirdParty Financing Addendum Templates [PDF] Examples Best Buy Third Party Financing learn about deferred financing with best buy, including how it works, payment requirements, account information, helpful. Enjoy the products you want today and pay for them over time with flexible financing options,. Apply today and get 10% back* in rewards on your first. Interested in the my best buy® credit card? They can be your current. Buy now, pay. Best Buy Third Party Financing.
From www.pinterest.com
Reasons why you should buy third party insurance online in 2020 Best Buy Third Party Financing Apply today and get 10% back* in rewards on your first. Interested in the my best buy® credit card? They can be your current. Enjoy the products you want today and pay for them over time with flexible financing options,. Buy now, pay later with fairstone™.¹. learn about deferred financing with best buy, including how it works, payment requirements,. Best Buy Third Party Financing.
From templatelab.com
26 Third Party Financing Addendum Examples ᐅ TemplateLab Best Buy Third Party Financing Enjoy the products you want today and pay for them over time with flexible financing options,. They can be your current. Apply today and get 10% back* in rewards on your first. Interested in the my best buy® credit card? learn about deferred financing with best buy, including how it works, payment requirements, account information, helpful. Buy now, pay. Best Buy Third Party Financing.
From templatelab.com
26 Third Party Financing Addendum Examples ᐅ TemplateLab Best Buy Third Party Financing learn about deferred financing with best buy, including how it works, payment requirements, account information, helpful. Apply today and get 10% back* in rewards on your first. They can be your current. Buy now, pay later with fairstone™.¹. Enjoy the products you want today and pay for them over time with flexible financing options,. Interested in the my best. Best Buy Third Party Financing.
From www.youtube.com
3rd Party Financing What, Why, When, How May 2014 YouTube Best Buy Third Party Financing Enjoy the products you want today and pay for them over time with flexible financing options,. Interested in the my best buy® credit card? Apply today and get 10% back* in rewards on your first. Buy now, pay later with fairstone™.¹. learn about deferred financing with best buy, including how it works, payment requirements, account information, helpful. They can. Best Buy Third Party Financing.
From finturf.com
What Is Third Party Financing 3rd Party Financing Guide Best Buy Third Party Financing Enjoy the products you want today and pay for them over time with flexible financing options,. They can be your current. learn about deferred financing with best buy, including how it works, payment requirements, account information, helpful. Buy now, pay later with fairstone™.¹. Apply today and get 10% back* in rewards on your first. Interested in the my best. Best Buy Third Party Financing.